デザイン賃貸マンション
2026-03-05 15:05:27

洗練されたデザインと居心地を兼ね備えた賃貸マンション『LEGALAND西五反田ANNEX』が竣工

洗練されたデザインの賃貸マンション『LEGALAND西五反田ANNEX』が誕生



東京都品川区西五反田に新たなデザイナーズ賃貸マンション、『LEGALAND西五反田ANNEX』が2023年2月26日に竣工しました。この物件は、住友林業グループ傘下で不動産事業を展開する株式会社LeTechが手掛けており、特徴的なデザインと生活利便性の両立を実現しています。

物件の概要



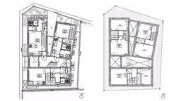
『LEGALAND西五反田ANNEX』は、品川区西五反田4丁目に位置し、東急目黒線「不動前」駅から徒歩約8分という好立地です。敷地面積は約140.49㎡、延床面積は約387.48㎡で、鉄筋コンクリート造の地下1階付き地上4階建ての構造です。総戸数は12戸で、1K、1R、2DKなど多様な間取りが用意されています。これにより、様々なライフスタイルに応じた居住空間を提供しています。

特徴的なデザインと居住性



このマンションは、外観がまるで複数棟が並んでいるかのようなデザインが特徴です。コンクリート打放しを基調にしており、洗練された景観を形成しています。計算された開口部の配置もまた、開放感と静けさを兼ね備えた居住空間を作り出しています。

特に注目すべきは、居室の独立性です。全住戸が角部屋感覚で設計されており、隣家との視線や音の干渉を心配することなく快適に生活できます。また、メゾネット住戸プランを取り入れ、上下階を有効活用することによって、戸建てのような生活スタイルも可能です。

LEGALANDシリーズの魅力



株式会社LeTechが展開するデザイナーズ賃貸マンションシリーズ「LEGALAND」は、これまでに都内を中心に100棟以上の開発実績を持っています。特に注力されているのが、材料やデザインに対するこだわりです。耐力壁を使用した「壁式構造」により、室内には柱や梁が存在せず、使いやすい空間を実現しています。また、「駅近」物件を優先することで、生活に便利さをもたらします。

さらに、デザイン面でもモダンでスタイリッシュな印象を与え、周囲の環境にも調和します。このようなこだわりが、不動産投資家から高い評価を得る理由の一つとなっています。

企業理念と今後の展望



「LEGALAND」という名称には、イタリア語で「結ぶ」や「繋がる」という意味が込められています。人々と人々がつながり、住む人々への配慮を大切にしたいという思いが表れています。この理念に基づき、今後も高品質な住空間を提供し続けることでしょう。

会社情報



『LEGALAND西五反田ANNEX』を手掛けた株式会社LeTechは、大阪府大阪市に本社を置き、東京にも支社を持つ企業です。2000年に設立され、ソリューション事業や不動産管理事業を展開しています。今後のさらなる展開が期待されます。

詳細については、公式サイトをご覧ください。


画像1

画像2

画像3

画像4

画像5

画像6

画像7

画像8

画像9

画像10

会社情報

会社名
住友林業
住所
電話番号

トピックス(地域情報)

【記事の利用について】

タイトルと記事文章は、記事のあるページにリンクを張っていただければ、無料で利用できます。
※画像は、利用できませんのでご注意ください。

【リンクついて】

リンクフリーです。