新しい木の家「Type_005」
2026-04-28 15:08:01

国産材を満喫し快適な暮らしを実現する新しい木の家「Type_005」

環境に優しい国産材を使用した新たな木の家



福岡県の株式会社FANFAREが、2025年に開発した環境共生型住宅『SOWOOD(ソーウッド)』は、伝統的な板倉構法と現代のデザイン技術を融合させた新たな住宅のカタチです。そして、この度発表された『Type_005 表裏のない平屋』は、国産材をふんだんに使用し、日々の暮らしを楽しく豊かにしながら、日本の森林の安定した循環にも貢献できるように設計されています。

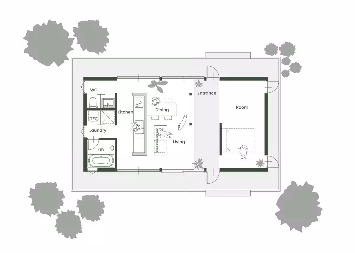
「表裏のない」潔さと開放感



『Type_005 表裏のない平屋』は、南北等価設計を採用しています。これにより、北向きでも南向きでも、光と風を均等に取り入れることができ、表裏のない美しい佇まいを作り出しています。視覚的にも魅力的で、どの方位でも自然と調和する設計です。

独自のモジュール設計



18坪という最適な面積を持ち、910mmのモジュールを最大限活用することで、構造的な安全性と空間的なゆとりが確保されています。しかも、この設計は将来的な拡張や多目的な使用にも応えられる柔軟性が特徴です。たとえば、アトリエや民泊としても使用できる可能性を秘めています。

自然との対話を感じる設計



この平屋の特徴的なデザインの一部は、コンクリートの土間デッキです。これにより、建物は地面から浮いているような視覚効果を生まれ、周囲の自然環境との境を曖昧にし、まるで自然の一部となる独立した世界観が構築されています。

美しさを追求した板倉構法



板倉構法の美しさを追求しており、壁を張らずに構造を露出させることで、骨格の美しさがあらわれます。配線や配管をまとめたり、デザイン面で工夫を凝らすことにより、これらの難題をも解決しています。これにより、より自然な空間を作り出しています。

パッシブデザインと居心地の良い住空間



この平屋のデザインには、パッシブデザインの理念が色濃く反映されています。大きく開放された南北の窓は、冬には自然に熱を蓄え、夏には風通しを良くします。コンクリート土間の蓄熱効果を利用することで、エネルギー効率も高い心地よい温熱環境が実現されています。住宅の内外が自然の流れを感じさせるような、居心地の良い空間が提供されるのです。

設計者の思い



設計を手がけた安河内健司氏は、敷地との一体感を重視し、閉じ込めずに開放感ある住まいを提供することを志向しています。また、未来に向けた拡張性や、自然の恵みを最大限に引き出せるような工夫を施し、柔軟に使用できるスペースを提供しています。

日本の森林文化と共に未来を考える



FANFAREの代表、梶原清悟氏は、国産材の積極的な活用を通じて、日本の豊かな森林と現代生活の統合を目指しています。未来の住まいが日本の森林文化を継承し、それを次世代に伝えるきっかけになることを願っています。

見学会のご案内



株式会社FANFAREは、SOWOODの設計理念をご理解いただける工務店様を募集中です。見学会も定期的に開催しているため、興味のある方はぜひ参加をご検討ください。最新情報は公式サイトでもお知らせしています。


画像1

画像2

画像3

画像4

会社情報

会社名
株式会社FANFARE
住所
福岡県福岡市博多区上呉服町2-4
電話番号
092-406-8600

関連リンク

サードペディア百科事典: 福岡県 福岡市 国産材 環境共生 SOWOOD

Wiki3: 福岡県 福岡市 国産材 環境共生 SOWOOD

トピックス(ライフスタイル)

【記事の利用について】

タイトルと記事文章は、記事のあるページにリンクを張っていただければ、無料で利用できます。
※画像は、利用できませんのでご注意ください。

【リンクついて】

リンクフリーです。