新モデル「hiraya」
2026-02-24 16:26:02

クリエイト礼文が新たな平屋モデル「hiraya」を発表!住まいの価値を再定義

クリエイト礼文が新モデル「hiraya」を公開



株式会社クリエイト礼文(本社:山形県山形市、代表取締役:大場友和)は、2026年1月から始まる住宅実験プロジェクト「Case Study House 2026」の一環として、新しい住宅モデル「hiraya」の紹介ページを公開しました。これにより、住宅に対する価値観を再評価し、現代の暮らしに必要な要素を探る試みが始まります。

「Case Study House 2026」とは



このプロジェクトは、2026年内に全20モデルの住宅を逐次発表することを目指しています。家庭を単なる売り物ではなく、社会情勢や価値観の変化を反映させた「問いかける存在」として捉えています。「この時代に人はどこまで幸福に暮らせるのか」という根源的な問いを基に、実物大の住宅モデルを通じて新たな検証と提案を行います。さまざまなテーマと思想をもったモデルが展開されるため、各家庭にとっての意味を深く掘り下げることができるでしょう。

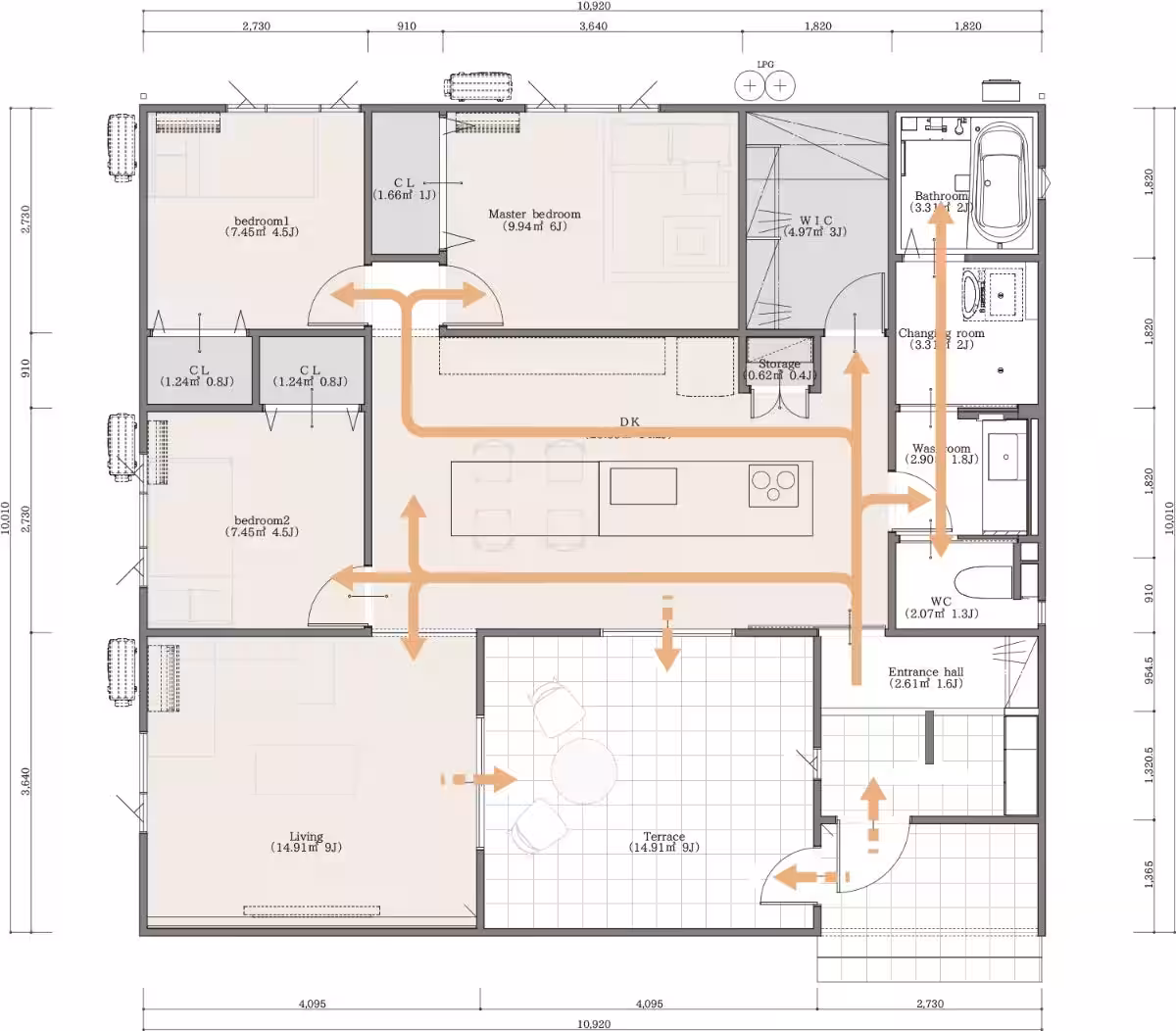
新モデル「hiraya」の特長



新たに発表された「hiraya」は、平屋住宅の形式を取り入れ、日常生活の質を見直すための提案です。このモデルは「日々の暮らしを静かに整える」というコンセプトを持ち、間取りや採光に工夫が凝らされています。動線や収納についても最適化が図られ、自然と片付けが進むような設計となっています。

特徴的な設計



  • - キッチンが中心の平面構成: 家事や食事を通じて家族のつながりを強めるため、キッチンを暮らしの中心に置いています。回遊動線により、効率的に生活ができるように計画されています。
  • - 開放的なデザイン: 自然光の入る快適さと、視覚的な広がりを持たせたリビングダイニング。家族の気配が感じられるような空間作りがなされています。
  • - シンプルなファサードデザイン: 過剰な装飾を避け、塗り壁と板張りの素材の組み合わせが落ち着いた印象を与えます。また、象徴的なシンボルツリーを通じて、住環境に豊かさをもたらすことを意識しています。
  • - 暮しやすさの工夫: 水回りの動線の合理化により、日常生活でのストレスを最小限にし、心地よい暮らしを実現するための設計が特長です。

新たな価値観の提案



「hiraya」は、物価上昇やワーク・ライフバランスの変化、エネルギー効率の問題が多く取りざたされる現代において、住まい自体の価値を見直すために企画されています。この試みは単なる住宅モデルの公開にとどまらず、「建てることの先に何があるか」を問い、ライフスタイルの新たな提案をも行っています。

今後の展望



2026年中には全20モデルを公開する予定で、各モデルごとに設計者へのインタビューや実際の暮らし方の提案、さらには実例ストーリーなど、多角的な情報発信を続けていきます。新たな研究と発見を皆様と共有し、住宅環境を向上させるために引き続き努力していく所存です。

会社情報



  • - 会社名: 株式会社クリエイト礼文
  • - 所在地: 山形県山形市南原町二丁目7-39
  • - 事業内容: 住宅・不動産・地域づくり関連事業
  • - URL: クリエイト礼文

お問い合わせ情報






画像1

画像2

画像3

画像4

画像5

画像6

画像7

会社情報

会社名
株式会社クリエイト礼文
住所
南原町2-7-39
電話番号
023-631-5771

トピックス(ライフスタイル)

【記事の利用について】

タイトルと記事文章は、記事のあるページにリンクを張っていただければ、無料で利用できます。
※画像は、利用できませんのでご注意ください。

【リンクついて】

リンクフリーです。