「遊と光の家」見学会
2026-04-23 11:29:46

家族の時間を育む新しい住まい「遊と光の家」完成見学会

家族の時間を育む新しい住まい「遊と光の家」完成見学会



群馬県安中市で、家族の絆や子どもたちが遊ぶための空間を提供する新しい住宅、「遊と光の家」の完成見学会が開催されます。この見学会は、いちいホーム一級建築士事務所が手掛けたもので、4月18日(土)から29日(水・祝)までの期間中に、完全予約制で実施されます。

住まいの設計理念


「遊と光の家」は、ただの住まいとしての空間を超えて、家族が共に過ごし、楽しむ時間を豊かにすることを目指して設計されました。近年の家づくりでは、特に子育て世帯においては、住まいのデザインにおいても家族がどのように過ごすかという視点が重視されています。忙しい共働きの家庭においては、家事の効率性だけでなく、子どもと一緒にいる時間の充実さも求められます。

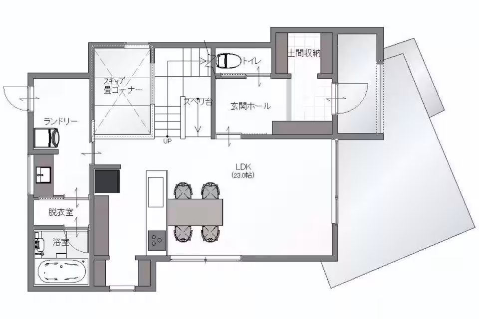
スキップフロアと室内滑り台


この住宅の特徴の一つは、スキップフロアの畳コーナーです。設計では、同じ空間内に段差を取り入れ、異なる居場所を提供しつつも、家族のつながりを維持します。また、畳コーナーからは室内滑り台があり、子どもたちが遊びながら楽しい時間を過ごせるスペースを創出しています。住まいづくりの中で、遊び心を忘れないアプローチが見事に形になっています。

三角形敷地の広がりを生かした設計


「遊と光の家」は、独特な三角形の土地に立地しており、その形状を活かした設計が施されています。家族のつながりや家事の動線がしっかりと整えられており、それぞれの居場所がありつつも、全体として広がりを感じさせる住まいとなっています。この設計は、家族が快適に、かつ自然にコミュニケーションを取れる場を提供します。

2階のワークスペースと気配を感じる生活


2階には、落ち着いて過ごせるワークスペースがあります。ここでは、家族の気配を感じながら自分の時間を持つことができ、リビングや畳コーナーと自然に繋がっています。家事や仕事をしつつも、家族全体のざわざわとした活動を感じることができる居場所は、心地よい暮らしを演出します。

家事動線への配慮


キッチンでは、光や空を取り入れることで、日々の料理が心地よい体験となります。また、ランドリーと脱衣室を一体化させるなど、スムーズな動線を重視した設計が施されています。これにより、洗濯から片付けまでの作業がスムーズに行え、忙しい子育て世帯でも快適に暮らすことができるでしょう。

お客様の声と評判


いちいホームで家づくりをした高崎市のご家族からは、スタッフの親身な対応や安心感を評価する声が多く寄せられています。住み始めてから生活がどのように変わったかを実感している声もあり、デザインだけではなく、実際の暮らしに対する配慮が入った住宅であることが伺えます。この完成見学会では、実際にその体験を通じて、いちいホームの家づくりの理念を体感することができます。

完成見学会の詳細


  • - 名称: 群馬・安中「遊と光の家」完成見学会
  • - 開催期間: 2026年4月18日~29日
  • - 時間: 10:00~17:00
  • - 会場: 群馬県安中市(詳細は予約後に案内)
  • - 形式: 完全予約制

おすすめの人


  • - 高崎市・安中市周辺で家づくりを検討している30代の方
  • - 子どもが安心して遊べる家を求めている方
  • - 家族がつながる間取りに興味のある方
  • - スキップフロアや吹き抜けに魅力を感じる方
  • - 家事動線とデザインを両立させたい方

いちいホームの家づくりについて


いちいホームは、注文住宅を専門とする株式会社瀧澤興業が展開するブランドであり、群馬県高崎市を中心に地域に根ざした家づくりを行っています。一家族ずつの心地よいバランスを考え、暮らしを育む住まいを提案し、自社大工による精緻な施工を誇ります。

お問い合わせ先


  • - 会社名: いちいホーム一級建築士事務所 (株式会社瀧澤興業)
  • - 住所: 群馬県高崎市八幡町788-8
  • - 電話: 027-381-8939
  • - 受付時間: 8:00~17:00
  • - 公式サイト: いちいホーム公式サイト


画像1

画像2

画像3

画像4

画像5

画像6

画像7

会社情報

会社名
株式会社瀧澤興業
住所
群馬県高崎市八幡町788-8
電話番号
027-343-3577

トピックス(地域情報)

【記事の利用について】

タイトルと記事文章は、記事のあるページにリンクを張っていただければ、無料で利用できます。
※画像は、利用できませんのでご注意ください。

【リンクついて】

リンクフリーです。