ICHI 縁、富士山麓に
2025-10-23 15:49:17

動物と共に富士山を楽しむ新たな宿泊体験『ICHI 縁』が登場!

富士山麓にオープンする動物同伴型宿『ICHI 縁』



富士山の美しい景色を一望できる、動物同伴型の古民家宿泊施設『ICHI 縁』が2025年11月1日にグランドオープンします。本施設は、山梨県南都留郡富士河口湖町大石に位置し、世界遺産・富士山を近くに感じながら、家族や友人と特別なひとときを楽しめる場を提供します。

ICHIが目指す宿泊体験


『ICHI 縁』は「大切な家族や仲間が富士に集う」をテーマに掲げ、最大8名まで宿泊可能な一棟貸しの古民家を改装した空間です。ここでは、犬や猫などのペットはもちろん、屋内で飼われている小動物たちもファミリーとして一緒に宿泊可能です。また、宿泊料の一部は動物愛護活動を行う団体に寄付される仕組みもあり、動物たちの安全を守る精神も大切にしています。

施設の魅力


古民家ならではの温かみのあるインテリアは、居心地の良さを提供し、家族みんながリラックスできる設計がされています。二階建ての一棟からは、富士山の絶景を楽しむことができ、特に二階の窓から見える富士山は非日常的な美しさです。浴室は半露天風呂も完備され、開放的なデザインで、入浴しながら majesticな富士山を目の前に楽しむことができます。

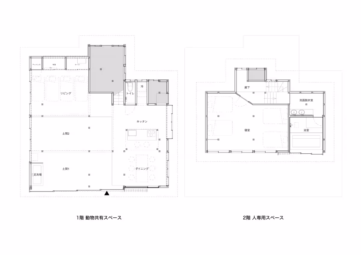
1階と2階の設計


1階には動物が自由に過ごせる広い土間があり、家族全員が一緒に過ごすスペースが確保されています。犬や猫が走り回る様子を見ながら、ダイニングで食事を楽しむことができます。一方、2階はプライベートな寝室と特別な浴室があり、静かに休める空間が整えられています。

食事の特徴


宿泊者には、山梨の名店と提携し、特別な夕食や朝食が提供されます。夕食には『紅梅や』のすき焼きが楽しめ、朝食には『オーベルジュマーメイド』のオリジナル朝食BOXも用意されています。食材持ち込み自由なアイランドキッチンも完備されているので、アレルギーやお子様連れの方も安心して利用できます。

周辺スポット


『ICHI 縁』から徒歩1分の位置には大石公園があり、愛犬の散歩にも最適です。また、近隣にはショッピングを楽しめる『富士大石ハナテラス』もあり、旅の思い出作りにもぴったりのスポットです。

まとめ


動物と共に過ごせる温かな空間『ICHI 縁』は、富士山を背景に特別な旅行体験を提供します。大切な家族や仲間と、一緒に思い出を作りに訪れてみるのはいかがでしょうか。予約は公式サイトまたはメールで受け付けており、プレオープンは2025年10月30日からとなります。この素晴らしい体験をお見逃しなく!

公式サイト: ICHI 縁公式サイト


画像1

画像2

画像3

画像4

画像5

画像6

画像7

画像8

画像9

画像10

画像11

画像12

画像13

画像14

画像15

画像16

画像17

画像18

画像19

画像20

画像21

画像22

画像23

画像24

画像25

画像26

画像27

画像28

画像29

画像30

会社情報

会社名
ICHI
住所
電話番号

トピックス(地域情報)

【記事の利用について】

タイトルと記事文章は、記事のあるページにリンクを張っていただければ、無料で利用できます。
※画像は、利用できませんのでご注意ください。

【リンクついて】

リンクフリーです。