新築賃貸マンション募集
2026-02-03 15:29:43

世田谷区初のデュオフラッツシリーズ!新築賃貸マンション入居者募集

世田谷区初のデュオフラッツシリーズが登場!



新たに世田谷区に誕生したデュオフラッツ千歳船橋が入居者の募集を開始しました。この新築賃貸レジデンスは、最近注目を集めているデュオフラッツシリーズの一環として、住まいに求めるさまざまなニーズに応えるべく多様な間取りを提供します。

物件の基本情報


デュオフラッツ千歳船橋は、東京都世田谷区桜丘に位置し、最寄り駅の小田急線「千歳船橋」駅から徒歩わずか6分の距離にあります。この立地は、都心へのアクセスが便利に整っているため、忙しい生活を送る方にもぴったりです。

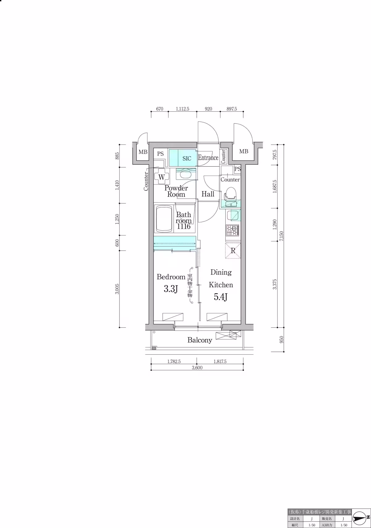
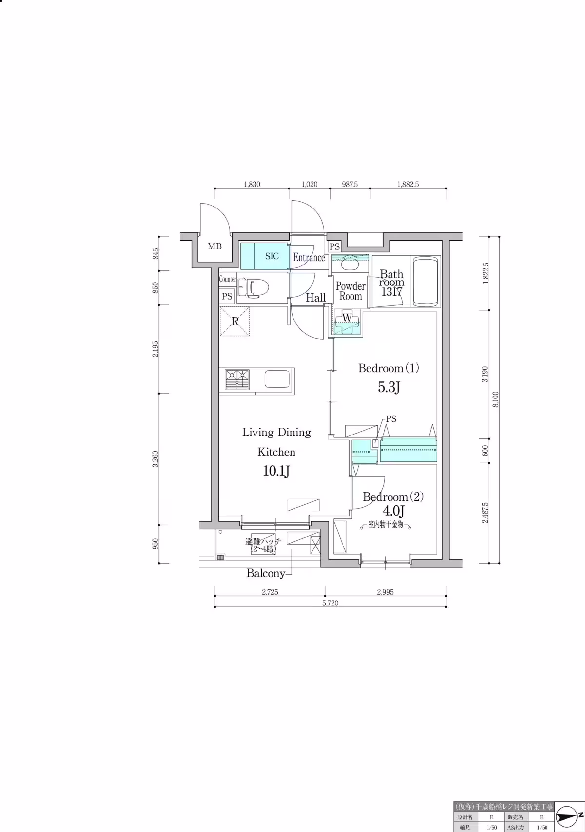
物件はRC造の地上4階建てで、総戸数は45戸を誇ります。竣工予定日は2026年3月末で、入居が楽しみです。間取りは1R、1K、1DK、1LDK、2LDK、3LDKと幅広く、面積は25.21㎡から60.94㎡まで対応しています。駐車場は設けられていませんが、バイク置き場や駐輪場が完備されています。

内覧とモデルルーム


特筆すべきは、バーチャルモデルルームの内覧が可能な点です。これにより、物件が完成する前にさまざまなタイプのお部屋のイメージを把握できるため、特に多忙な方にとっては便利なサービスです。物件の公式ホームページにアクセスすることで、1R/Lタイプや1LDK/Gタイプ、2LDK/Fタイプ等の内覧が行えます。

さらに、2026年3月末には実際のモデルルームが公開される予定で、1LDK/Jタイプや2LDK/Fタイプが披露されることになるでしょう。ただし、モデルルームの内容は変更される可能性があるため、訪問する際は公式情報をチェックすることをお忘れなく!

住まいの特徴


デュオフラッツ千歳船橋の魅力は、何と言ってもその設計です。全13タイプの多様な間取りが用意されており、住む方のライフスタイルに柔軟に対応します。特に壁式構造を取り入れており、柱の出っ張りが無いため、空間を最大限に利用できる設計となっています。また、内廊下はホテルライクな雰囲気を醸し出しており、日常に少しの贅沢をプラスしています。

収納スペースも充実しており、個々のライフスタイルに合わせた使い勝手の良い工夫が施されています。例えば、ウォークインクローゼットやシューズインクローゼット(SIC)が用意されており、居住者が快適に生活できる空間を提供しています。

「新しい欲しかった暮らし」を実現


デュオフラッツシリーズは「新しい欲しかった暮らし」をテーマに全国展開しているブランドで、各物件は利用者の視点から徹底して考えられた設計が特徴です。デュオフラッツ千歳船橋も、住む方々の生活を豊かにするための様々な工夫が随所に見られ、居住空間をより快適にするための工夫がなされています。

問い合わせ先


詳細や入居申し込みに関する問い合わせは、フージャースアセットマネジメントの公式HPまたは担当者へ直接連絡することができます。新しい住まいでの生活を始める絶好のチャンスをお見逃しなく!

公式リンク


  • - デュオフラッツ千歳船橋公式HP: こちら
  • - デュオフラッツ公式インスタグラム: こちら

新たな居住空間を探している方々にとって、デュオフラッツ千歳船橋は理想の住まいとなるかもしれません。ぜひ、早めの内覧を検討してみてはいかがでしょうか。


画像1

画像2

画像3

画像4

画像5

画像6

画像7

画像8

画像9

画像10

画像11

画像12

会社情報

会社名
株式会社フージャースホールディングス
住所
東京都千代田区丸の内2丁目2番3号丸の内仲通ビル10階
電話番号
03-3287-0704

トピックス(地域情報)

【記事の利用について】

タイトルと記事文章は、記事のあるページにリンクを張っていただければ、無料で利用できます。
※画像は、利用できませんのでご注意ください。

【リンクついて】

リンクフリーです。