住まいの新たなカタチ
2026-02-13 13:23:11

トランジットクリエイティブとの共創が生んだ新しい住まいのカタチ

住まいの新たなカタチ:INITIA&Renovation IDシリーズの発表



株式会社コスモスイニシアは、株式会社トランジットクリエイティブとの共創プロジェクト「INITIA&Renovation ID」シリーズを進化させ、新たなEDITIONを発表しました。このプロジェクトでは、住まいに対する多様な価値観に応える設計がなされ、京都の『グランクール河原町二条』と東京の『ザ・アッパーレジデンス・アット・南青山』という二つの住居が新たに完成します。

理想の暮らしを求める声


近年、住まいに求められる価値は単なる機能性を超え、個々の美意識や感性にマッチした空間を求める声が高まっています。これを受け、「INITIA&Renovation ID」は、美しい瞬間を体験できる住まいを目指し、流行に敏感なアーリーアダプター層へ向けて展開されています。

コンセプトは「Suite Reserve」。トランジットクリエイティブがブランドのトータルクリエイティブディレクションを担い、非日常を日常に取り入れることに焦点を当てたリノベーションマンションで、贅沢な住空間を提供します。

新たに再編されたEDITION


今回の再編により4つのEDITIONが設けられ、それぞれが異なるライフスタイルや価値観に応える設計となっています。EDITIONには以下の特性があります:

  • - MODERN NOBLE EDITION: 確かな品格を兼ね備え、上質な暮らしを実現。
  • - INTELLIGENCE EDITION: 都市での生活をより豊かにする洗練された空間。
  • - MELLOW EDITION: 平穏な日常を楽しむための心地よいライフスタイル提案。
  • - TIMELESS RETREAT EDITION: 自然と調和し、心の豊かさをもたらす特別な住まい。

プロジェクトの詳細


グランクール河原町二条


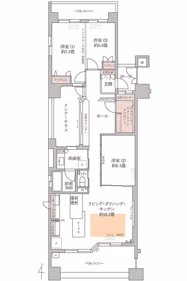
この住宅はMODERN NOBLE EDITIONに属し、重厚感と上品さが融合したデザインが特徴です。居住空間は、木材やガラスを使用し、落ち着いたトーンにまとめられています。また、間取りはフレキシブルに変化可能で、住む人のライフスタイルに寄り添う設計が注目を集めています。

  • - 所在地: 京都府京都市中京区
  • - 間取り: 3LDK(91.80㎡)
  • - アクセス: 地下鉄「京都市役所前」駅から徒歩7分。

ザ・アッパーレジデンス・アット・南青山


こちらはINTELLIGENCE EDITIONに属し、洗練された都会的なデザインが魅力。特に主寝室中心にレイアウトされた構成は、まるでスイートルームのような特別感を提供しています。

  • - 所在地: 東京都港区南青山5丁目
  • - 間取り: 2LDK(77.83㎡)
  • - アクセス: 「表参道」駅から徒歩6分。

住まいの体験を重視


INITIA&Renovation IDシリーズの魅力は、単なる居住空間を超え、人生を豊かにする体験を提供することにあります。コスモスイニシアは、住まい手の心に寄り添う設計を追求し、“ここに住んでよかった”という確信を届けることを目指しています。

また、このシリーズに関するさらなる情報は、公式ウェブサイトや関連書籍を通じて広がる予定です。今後も、新たなEDITIONによるプロジェクトが続々と展開され、ますます魅力を増していくことでしょう。


画像1

画像2

画像3

画像4

画像5

画像6

画像7

画像8

画像9

画像10

会社情報

会社名
大和ハウス工業株式会社
住所
大阪府大阪市北区梅田3-3-5
電話番号
06-6346-2111

トピックス(ライフスタイル)

【記事の利用について】

タイトルと記事文章は、記事のあるページにリンクを張っていただければ、無料で利用できます。
※画像は、利用できませんのでご注意ください。

【リンクついて】

リンクフリーです。