AIが変える3D設計
2025-07-02 16:50:53

MICOTOが実現するAIによる3Dオフィスモデル自動生成技術の革新

MICOTOが切り開く新たな空間設計の未来



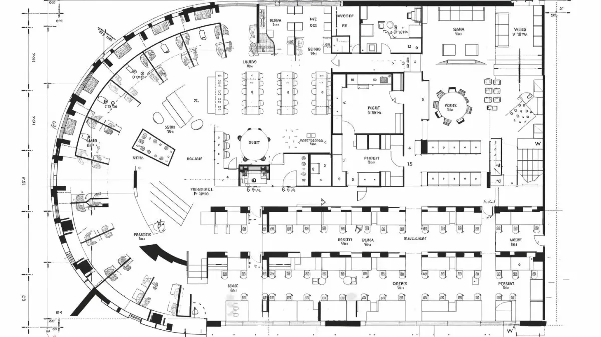
2025年7月2日、株式会社MICOTOは画期的な技術を発表しました。それは、平面図から瞬時に3Dオフィスモデルを生成するAI技術です。この技術は、従来数日間を要していた3Dモデリングを、わずか数分で実現するものです。オフィス設計や不動産営業、ファシリティマネジメントにおける業務効率化が期待されています。

課題の背景


近年、オフィスの移転や店舗の改装、BCP(事業継続計画)対策などが盛んに行われており、それに伴うニーズが急速に高まっています。しかし、従来の方法ではCADオペレーターが手動でモデリングを行い、1フロアあたり数十時間もの作業が必要でした。また、レイアウトの変更が発生するたびに再度モデリングを行う必要があり、納期とコストが膨らむという課題が存在しました。

新技術の効果


MICOTOが導入したAI技術によって、以下のような実績が得られています。
  • - レイアウト検討期間の最大90%短縮: 従来約2週間かかっていた作業が、わずか1〜2日で完了。
  • - モデリング外注費の平均70%削減: 手作業のモデリングが不要となり、コストが大幅に削減。
  • - 施設管理業務の自動化・高度化: BIM(ビルディング・インフォメーション・モデリング)との連携や、図面変更の自動検出、ハイライト表示、保守台帳との連動など、多彩な機能拡張が可能です。

これにより、企画、設計、運用の各フェーズにおいて時間とコストを同時に削減し、柔軟で正確な空間マネジメントが実現されます。

MICOTOのビジョン


MICOTOは「AIで人間の成長を支援する」というミッションを持ち、AI技術を活用してさまざまな業界の課題を解決することに取り組んでいます。今回の図面3D化技術は、空間設計分野におけるAI活用の新たな可能性を示しており、今後ますますの進化が期待されます。

会社概要


  • - 会社名: 株式会社MICOTO
  • - 代表取締役: 濱田憲一
  • - 所在地: 東京都渋谷区渋谷2丁目21−1 ヒカリエオフィス棟 33階
  • - 設立: 2024年12月19日
  • - 事業内容: AI研修事業、DXコンサルティング、AIエージェント「WATASHI」の開発など。
  • - WEBサイト: MICOTO公式サイト

この新技術の導入によって、オフィス設計の現場は大きく変わることでしょう。快適な空間の創造を支援するこのAI技術の今後の展開が楽しみです。


画像1

会社情報

会社名
株式会社MICOTO
住所
東京都渋谷区渋谷2丁目21−1 ヒカリエオフィス棟 33階
電話番号
050-5873-1057

関連リンク

サードペディア百科事典: 東京都 渋谷区 AI技術 3Dモデル MICOTO

Wiki3: 東京都 渋谷区 AI技術 3Dモデル MICOTO

トピックス(IT)

【記事の利用について】

タイトルと記事文章は、記事のあるページにリンクを張っていただければ、無料で利用できます。
※画像は、利用できませんのでご注意ください。

【リンクついて】

リンクフリーです。